
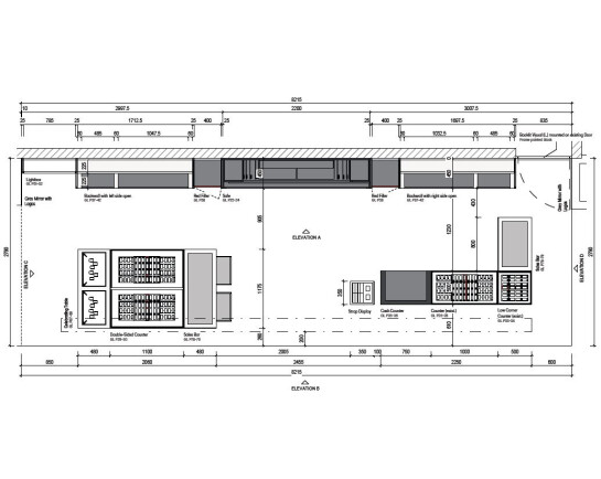
classic retail support
in close cooperation with our client's designers and architects, we prepare plan documentation and visualizations for internal presentations, budget discussions, negotiations with clients and landlords, etc.
we cover shop-in-shop and boutique planning, popup installations or custom furniture designs. naturally we also prepare and maintain the necessary BIM library.
design development support
we support your designers with fast visualization updates as they go through different options in the development process.

construction supervision and planning
within the greater zurich area we prepare tender documents, deal with city authorities, supervise construction and cost control (as defined by SIA)
(we're only using reference images without brand identifiers in consideration of our clients' wishes)